Alario Arquitectura
Escrito por
en
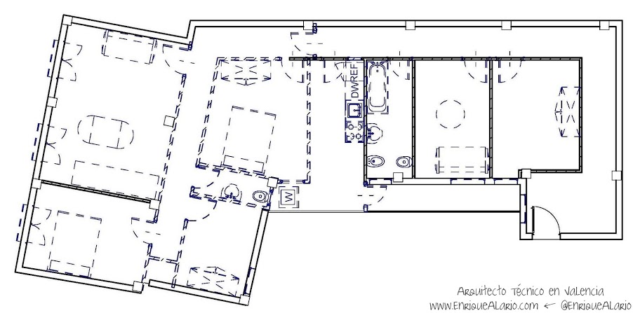
Reforma de Vivienda en Valencia | Elementos Derribados
Tu dirección de correo electrónico no será publicada. Los campos obligatorios están marcados con *
Comentario *
Nombre
Correo electrónico
Web
Guarda mi nombre, correo electrónico y web en este navegador para la próxima vez que comente.
Δ
Este sitio usa Akismet para reducir el spam. Aprende cómo se procesan los datos de tus comentarios.
Deja una respuesta